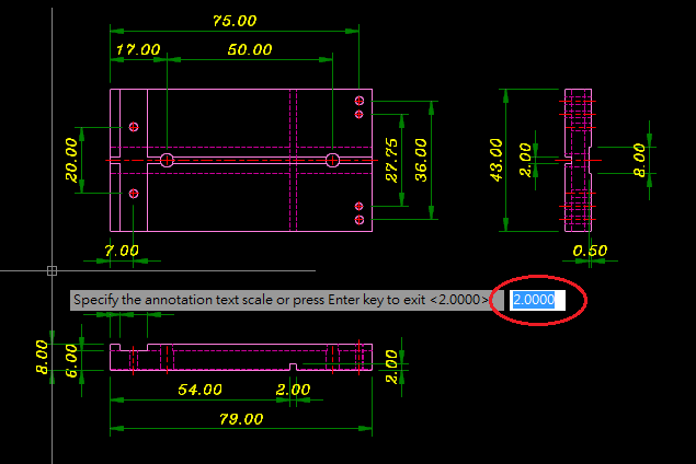
1. The “Change Annotation Text Scale” command.
2. Select all dimensions.
3. After selecting, it shows the current scale (1.2).
4. Input a new value. We use 2.0 for a new value in this case.
5. Changing completed. The text size, arrow size, and spacing etc. were changed, but the measurement scale is intact. When using this function, inputting a new value continuously is allowed until you are satisfied.
P.S. This function only changes the scale of dimension features, and it does not affect the measurement scale.





Hi. Just downloaded your program via CNet. Wanted to give the 30 day trial a try, but I can't, it says that 'Automatical activating failed.'. Do you still give support to the program? Hope to hear from you. Thanks.
ReplyDelete